コンテンツ作成日:
更新日:
福岡糸島加布里店
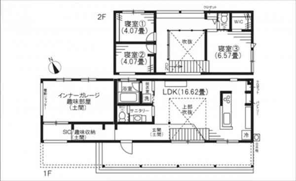
糸島の光に包まれる、穏やかな暮らしの舞台
無垢材のぬくもりと鉄やモルタルの質感が調和した、洗練された住まい。
大きな吹抜けとスケルトン階段が家族の気配をつなぎ、光と風が心地よく巡ります。
海のそばで過ごす日常にふさわしい、防塩仕様とインナーガレージも完備。
自然とともに豊かに暮らすライフスタイルを、ぜひご体感ください。
- 延床面積
- -
プラン、仕様、地域等の条件によって価格が異なることがあります。
Lib Work
間取り
ギャラリー
-
ダイニング・リビング・階段がひとつながりになった設計で、 どこにいても家族の気配を感じられる、安心感に包まれた住まいです。 -
スタイリッシュなスケルトン階段と吹抜が生み出す、光あふれる開放的な空間。 -
ナチュラルな無垢材の床が、やさしい足ざわりと自然のぬくもりを感じさせます。 素足で歩くたびに心地よさが広がる、癒しの住まいです。 -
鉄やモルタルといった無機質な素材と、木のぬくもりを感じる有機的な素材をバランスよく調和させました。
ブランド紹介
-
Afternoon Tea HOUSE「Afternoon Tea HOUSE」は、Afternoon Teaの世界観を取り入れ、日常に心のゆとりと豊かな時間を生み出す住まいを提案しています。 窓は採光や換気だけでなく、光や風をコントロールし外とのつながりを演出。 動線設計では暮らし方を丁寧にヒアリングし、理想的な生活の流れを形にします。 仕上げ材には木や塗り壁を多用し、手触りや経年変化を楽しめる素材を採用。 さらに、通路に立ち止まれる余白や、リビングの段差など、家族が自然に集う工夫が散りばめられています。 -
再春館製薬所の家「再春館製薬所の家」は、人と人が自然に集まり会話を楽しめる空間設計が特徴です。 余白のある間取りで互いの気配を感じつつ、自分の居場所も確保でき、友人を招いても皆が心地よく過ごせます。 天然木や杉材、大谷石、エッグクロスなどサステナブルな素材を採用し、経年変化や自然の力が心身を癒やします。 段差や遠回りの動線で無理なく体を動かし、季節の移ろいを五感で味わえる工夫も満載。 再春館製薬所とLib Workの理念が一致し誕生した住まいです。 -
LIVELY VILLA Noki「LIVELY VILLA Noki」は、帝人とLib Workが共同開発した次世代の平屋住宅ブランドです。 国産スギ材に炭素繊維を組み合わせた独自素材「LIVELY WOOD®」を採用し、通常のスギ集成材の2倍以上の強度を持ちながら軽量で、耐震性と大空間設計を両立。 幅4.5mの大開口や3mの深い軒下を備え、内と外をフラットにつなぐ開放的な住空間を実現します。 大屋根と水平ラインが自然と調和し、リゾート感のある暮らしを演出しています。 -
Lib Earth HouseLib Workが開発した「Lib Earth House」は、土を主原料とする日本初の3Dプリンター住宅です。 当社の3Dプリンター住宅は、革新的で持続可能な建築手法として、環境への負荷を抑えながら、経済的・社会的に新たな価値を創出する取り組みです。 私たちは「サステナブル&テクノロジーで住まいにイノベーションを起こす」をミッションに掲げており、この住宅はまさに持続可能な未来への強いコミットメントを具現化したものと位置づけています。
Lib Workの注文住宅(モデルハウス)
-

熊本阿蘇西原 LIVELY VILLA Noki
Lib Work
深い軒と大開口が描く、景色と暮らす住まい
-

福岡糸島二丈福井 LIVELY VILLA Noki
Lib Work
深い軒と大屋根が描く、美しい水平ライン
-

熊本南店
Lib Work
グレージュとジャパニーズモダンが織りなす、光と風を感じる平屋
-

TOSハウジングメッセ店
Lib Work
ブランド「Afternoon Tea」とコラボしたぬくもりある住まい
-

sketch パークプレイス大分店
Lib Work
“好き”を散りばめた、niko and…の家
-

佐賀店
Lib Work
自然体で心地よく暮らす、カフェのような平屋
-

福岡大牟田手鎌店
Lib Work
niko and … の世界観を取り入れた「ink」のモデルハウス
-

福岡朝倉筑前店
Lib Work
心地よさをデザインする平屋



