コンテンツ作成日:
更新日:
GIAZO -ジアゾ- 東広島
開放感と快適性を両立した、理想の住まいのかたち
HTV-GIAZOは、フラットでマットな塗り壁と木の素材感が調和した上質な外観が特徴です。
大きな窓と木の板張り天井が生み出す開放的なリビング、1階全体をひとつにつなげた広がりのある空間設計、上質なアイランドキッチンと回遊動線の家事ラク設計など、暮らしやすさを随所に追求。
全館空調FITAIRにより一年中快適な室温を保ち、洗面・ランドリーや庭のデッキなど、日常を豊かにする空間も充実した住まいです。
- 延床面積
- 199.50m² (60.34坪)
プラン、仕様、地域等の条件によって価格が異なることがあります。
創建ホーム
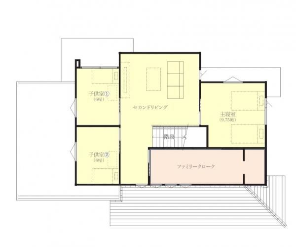
間取り
モデルハウスの見どころ
-
リビングリビングは、大きな窓から広がる開放感に加え、天井に施した木の板張りがやわらかな風合いを添え、心安らぐ雰囲気を演出します。 庭の緑とも自然に調和し、室内にいながら外とのつながりを感じられる空間です。 日々の暮らしを、より上質で豊かなものへと導きます。 -
1Floor1階全体をひとつの大きな空間としてつなげることで、一体感のある伸びやかな住まいを実現しています。 スペースを無駄なく活かし、部屋をより広く見せるための工夫も随所に取り入れています。 -
ダイニングキッチン空間全体のデザインを引き立てる、上質なアイランドキッチンと大容量のカップボードを採用しました。 さらに、キッチンはランドリーや洗面室とつながっており、家事動線がスムーズになる回遊性のある間取りに。 毎日の家事負担を軽減し、心地よい暮らしを支えます。 -
全館空調-FITAIR-創建ホームの全館空調システム「FITAIR(フィットエアー)」を搭載したモデルハウスです。 床下から室内全体の温度を調整することで、24時間365日、家中どこにいても均一で快適な室温を保つことができます。 -
洗面・ランドリールーム造り付けのシンプルで落ち着いた洗面台には、使い勝手のよいカウンターを備えています。 隣接するランドリースペースでは、洗う・干す・畳む・アイロン掛け・収納までの一連の作業をスムーズに完結でき、毎日の家事を快適にしてくれる実用的な空間となっています。 -
お庭お庭は、ご家族の暮らしに楽しみとゆとりをもたらす大切な空間です。 LDKとつながるコンクリートデッキでは、BBQを楽しんだり、夏にはプールを広げたりと、多彩な過ごし方ができます。
「創建品質」を支える3つの強み
-
理想を叶えるデザイン創建ホームでは、ご家族の理想やライフスタイルに寄り添うため、フルオーダーメイドの自由設計を採用し、“世界にひとつだけ”の住まいを実現しています。 広島で7,000棟を超える注文住宅を手がけてきた経験を活かし、培われた設計力と技術力で理想の暮らしを形にします。 さらに、ナチュラル・スタイリッシュ・南欧風など多彩なコンセプトのデザインシリーズを展開し、個性豊かな住まいをご提案します。 -
強く、高品質な家創建ホームの住まいは、家族の暮らしを守るための確かな性能を備えています。 耐震・制震性能を併せ持つ耐力壁を標準採用し、大規模地震や繰り返し起こる揺れに対しても建物の変形や倒壊を防ぐ強さを確保。 さらに、壁・天井・床など各部位に適した高気密・高断熱工法により、一年中快適で省エネ性の高い住環境を実現します。 安心して長く暮らしていただけるよう、最長60年の保証システムもご用意。 定期点検とアフターメンテナンスで、住まいの品質を継続的に守り続けます。 -
安心と信頼の企業力創建ホームでは、営業・設計・コーディネーターが専属チームを組み、それぞれの専門性を活かしながら理想の住まいづくりを総合的にサポートしています。 施工においては、創建ホームの理念に共感する「創建会」の現場監督と職人が、徹底した現場管理のもと高い品質を実現。 現場美化の取り組みなど、丁寧な家づくりの姿勢をご見学いただくこともできます。 さらに、企業としての信頼性向上にも力を入れ、世界最大手の信用格付機関によるSME格付けで最上位「aaa」を取得しています。
似ている注文住宅のモデルハウス
-

GIAZO -ジアゾ- 広島
創建ホーム
大空間と大開口を生かした設計により、心からくつろげる上質な住まい
-

CODA DESIGNモデルハウス
CODA DESIGN
30〜40代共働きご夫婦のための、心地よさと機能性を兼ね備えた住まいづくり
-

名取展示場
アイ工務店 仙台支店
スタイリッシュな外観が特徴の、アイデア空間を駆使したおうち。
-

タナカホームズ中津モデルハウス
田中建設
ぬくもりと機能が調和する、中庭のある家
NEW -

石巻分譲展示場
一条工務店仙台 榴ヶ岡営業所
上質な明るさと快適性能が調和する、リアルサイズの4LDK分譲モデル
NEW -

ハウジングモール倉敷展示場
パナソニックホームズ 岡山支社
空気から、住まいの質が変わる。パナソニック ホームズの全館空調住宅


