コンテンツ作成日:
更新日:
昭和住宅公園展示場(シャーウッド木造2階建て)
サステナブルかつラグジュアリーな暮らしを実現する住まい※プランの無料作成・送付は不可。
自然素材をふんだんに使った住まいは、漆喰の壁や草木染めの挽板、大谷石の床などが、手触りや足触りの心地よさに加え、経年変化による風合いも楽しめます。
自然素材ならではの温かみと、時間とともに深まる愛着が、新しい暮らしの価値観を提案します。
吹き抜けのある開放的なリビングは、東西から差し込む太陽光で満たされ、時間帯によって表情を変える光の色や強さを感じながら、ゆったりと過ごせる空間設計です。
DKに併設された窓辺は、くつろぎの空間として、読書や昼寝など多目的に利用できます。
- 延床面積
- 1階床面積 124.50㎡ 2階床面積 100.25㎡ 延床面積 224.75㎡
プラン、仕様、地域等の条件によって価格が異なることがあります。
積水ハウス株式会社 山梨支店
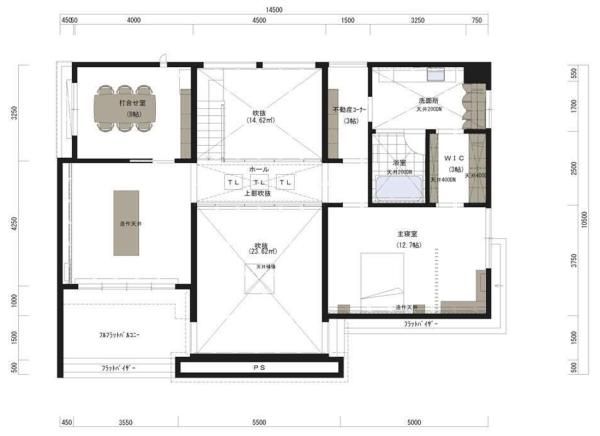
間取り
-
1F -
2F
イメージコラージュ
-
1階:『艶』床はグレー色のオーク材、壁は漆喰やタイル。 リビングとDKをしっかり分ける事で各空間に落着きと居場所を確保。 ピットリビングで空間を分けながら上部を吹抜けとしスキップ階段で上階と繋げ、広がりを持たせています。 DKは窓辺の居場所で外部(自然)を取込み、ヌックコーナーが生活にゆとりを与えます。 -
2階:『凛』床はマルホン床材オークの草木染、壁・天井は漆喰仕上げ。 茶の湯コーナーは奥様の茶事を体現し多国籍の方への日本文化発信場所となります。 抹茶をいただきながら皆で語らい寛げる空間です。 ラグジュアリーな水回りとWIC、主寝室を繋げて非日常空間を演出しました。
シャーウッドの基本性能
-
自由なデザインシャーウッドの「ファミリースイート」は、家族が思い思いの場所でくつろぎながらも、お互いのつながりを感じられる自由で幸福感あふれる空間を提供しています。 この仕切りのない大きな空間は、家族それぞれが自由に過ごしながらも、ゆるやかなつながりを感じられるように設計されています。 室内でのくつろぎだけでなく、開放的な「クリアビューデザイン」によって、戸外の自然とも一体となり、より豊かな時間を過ごせます。 -
暮らしを守る安心シャーウッドの家は、土台を挟まずに基礎と柱を専用の金物で直接つなぐ「基礎ダイレクトジョイント」という方法を採用しています。 この技術により、従来型の住宅にあった土台をなくすことができ、どの方向からの力に対しても均質な強度を発揮します。 さらに、耐震性を高めるための工夫は柱と梁の接合部にもあります。従来の工法では、木材を切り欠いて組み合わせていましたが、シャーウッドでは工場でにスリット加工を施すことで、木材の断面欠損を最小限に抑え、木が本来持っている強度を最大限に引き出しています。 -
人にやさしい素材シャーウッドは、今だけでなく未来の環境も守る家づくりを追求しています。 自然との共生を大切にするシャーウッド品質は、木材調達から始まります。 独自の「木材調達ガイドライン」を設け、自然の生態系や地域社会に配慮したフェアウッドの中でも、特に厳しい基準をクリアした木材のみを使用しています。 また、シャーウッドの「陶版外壁ベルバーン」は、日本の伝統的な焼き物から生まれた独自の素材です。自然素材を陶器と同じ工程で焼き上げ、温かく強靱な質感と唯一無二の表情を持つ美しい外壁材です。 -
永く続く快適性シャーウッドでは、住宅の重要な部分である構造躯体と雨水侵入防止部分に、最長30年の初期保証をお付けしています。 さらに、保証期間終了後も、定期的な有料点検と必要な有償工事を実施いただくことで、建物の寿命がある限り、いつまでも保証を延長できる独自のシステムを採用しています。 またシャーウッドは、壁の中に2層の空気層を設ける「デュアルベンチレーションシステム」を開発しました。 このシステムは、構造用合板の外側と内側に通気層を設けることで、空気の自然な上昇気流を利用し、湿気を直接屋外に排出する仕組みです。
積水ハウス株式会社 山梨支店の注文住宅(モデルハウス)
似ている注文住宅のモデルハウス
-

スマートに楽しく暮らせるフル装備の家
イシンホーム住宅研究会
光熱費0円のゆとりで、共働き支援、家族の楽しさも満喫
-

世代を超えて愛されるひとつ上のデザイン昭和住宅公園展示場
ミサワホーム甲信 甲府営業所
太陽の光も、自然の風景も、全てがインテリアになる。
-

甲府小瀬展示場(イズ軽量鉄骨2階建て)
積水ハウス株式会社 山梨支店
1Fも2Fも広々大空間で、どこにいても家族の存在を感じられます。※プランの無料作成・送付は不可。
-

ヒルズガーデン西八幡II
ミサワホーム甲信 甲府営業所
高天井×蔵収納×ZEH仕様のゆとり空間で、子育てと省エネを両立した快適な邸宅
-

インナーガレージつき未来のエネルギー住宅
イシンホーム住宅研究会
将来の支出まで見据えた、光熱費を抑えて賢く暮らすエネルギー0の家
-

昭和町紙漉阿原
ミサワホーム甲信 甲府営業所
開放感あふれるスキップフロアと大容量の蔵収納が魅力。省エネ性と快適性を両立したZEH住宅。


