コンテンツ作成日:
更新日:
一宮展示場
明るさと落ち着きを兼ね備えた、四季折々の光を効果的に取り込む3階建て二世帯住宅
大きな窓から自然光をたっぷり取り入れ明るく開放的なホールを中心に左右に世帯を分けることで、各世帯が独立したプライベート空間を持ちながら、家の中心のホールが家族の交流の場になる。
各階に異なる機能を持たせることで、住まいの多様性を実現しました。
- 延床面積
- 延床面積:382.55㎡ 1F:149.63㎡ 2F:136.44㎡ 3F:89.23㎡ 屋上:7.25㎡
プラン、仕様、地域等の条件によって価格が異なることがあります。
大成建設ハウジング 東海支店
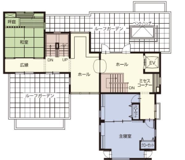
間取り図
-
1F間取り -
2F間取り -
3F間取り -
屋上
フォトギャラリー
-
キッチン赤と白を基調にしたモダンデザイン。 -
子供部屋大きな窓に加えて天窓もついているので、存分に日光を取り入れられます。 -
寝室棚には好きな本や小物などを飾って自分好みの空間に。 間仕切りドアを用いて2部屋に区切ることも可能です。 -
和室都会の喧騒を忘れさせる、洗練されたモダンな和室。 -
バルコニーセカンドリビングとしてくつろいだり、子どもの遊び場として遊んだり、屋上庭園でガーデニングを楽しんだり。様々な過ごし方ができる空間です。 -
リビング直線上にダイニング、キッチンと続く間取りになっています。 -
バスルームガラス張りの扉の向こうには黒を基調にしたバスルームがあります。 -
キッチン動線が確保しやすいペニンシュラデザイン。 -
玄関入ってすぐに庭園が目の前に見えるので、開放感を感じられます。
パルコンの基本設計ルール
-
施工可能階数パルコンの強固な構造なら、地上4階建て、地下1階まで建築可能。 広々とした空間設計で、様々なライフプランの夢を叶えられます。 -
天井高パルコンの標準な天井高は2.4m。 ご希望がございましたら、より空間の広さを感じられる2.6mで設計することもできます。 -
基本モジュールパルコンでは、基本寸法にゆとりのあるメーターモジュール(100cm)を採用。 日本の住宅で一般的な尺モジュール(91cm)に比べ廊下幅が広くなり、バリアフリーにも配慮した設計が可能です。 -
スイッチ・コンセントの高さスイッチが110㎝ コンセントが40cm パルコンの住まいでは、スイッチやコンセントの高さを工夫し、誰もが使いやすいユニバーサルデザインを採用しています。 車椅子の方だけでなく、高齢者やお子様も無理なく操作できる高さに設定することで、快適で安全な暮らしをサポートします。 -
自由設計お客様のご要望をお伺いし、1邸1邸オーダーで設計させていただきます。
大成建設ハウジング 東海支店の注文住宅(モデルハウス)
似ている注文住宅のモデルハウス
-

日進梅森展示場
大成建設ハウジング 東海支店
斜めにそびえ立つコンクリートの壁が象徴的な二世帯住宅
-

シャーウッド八事展示場
積水ハウス株式会社 名古屋東支店
積水ハウスのサロンで、心地よい光と音に包まれながら、至福のひとときをお過ごしください。
-

日進展示場
一条工務店 名古屋東部営業所
重厚な外観と上質な空間美。家族の未来を守る、高性能の住まい
NEW -

長久手東展示場
一条工務店 名古屋東部営業所
木の温もりと機能性。毎日を上質に包む、理想の住まい
NEW -

春日井展示場
一条工務店 名古屋西部営業所
性能も、美しさも、暮らしの中に。
-

イズ梅森Ⅰ展示場
積水ハウス株式会社 名古屋東支店
吹き抜けと二層壁が叶える、開放感と安心感のある住まい


