コンテンツ作成日:
更新日:
イズ嶋展示場
積水ハウス「IS(イズ)」の展示場
2024年5月にニューオープンした「イズ嶋展示場」。
高天井と無柱大空間、連続する大きな窓で、縦横に広々とした空間が広がっています。
私たちは「スローリビング」を掲げ、自然とのつながりを感じながらゆっくりとした時間を過ごすための空間づくりに努めています。
水回りや中庭はラグジュアリーかつホテルライクな雰囲気になっており、特別感が演出できるおうちになっています。
- 延床面積
- 1階床面積 113.38m² 2階床面積 105.29m² 延床面積 218.67m²
プラン、仕様、地域等の条件によって価格が異なることがあります。
積水ハウス株式会社 山形支店
| 工法・構造 | 軽量鉄骨造 | ||||||||||||||
|---|---|---|---|---|---|---|---|---|---|---|---|---|---|---|---|
| 世帯数・用途 | 単世帯 | ||||||||||||||
| 階数 | 2階建て | ||||||||||||||
| |||||||||||||||
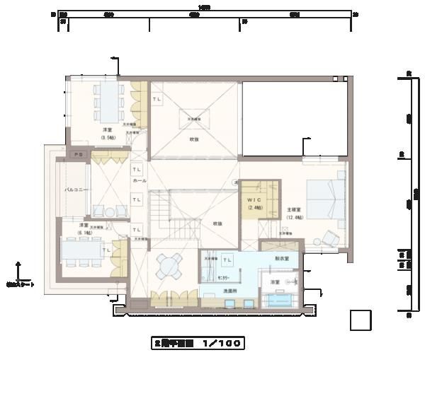
間取り
-
1F間取り -
2F間取り
「IS(イズ)」のおうちの特徴
-
玄関正面が広く開放的なホールで、ラグジュアリーな雰囲気を味わえます。 エントランスへのアプローチは少し長めにすることで、特別な空間への期待感を高めます。 -
リビング大きな窓から庭が見える、開放的な空間です。 外の景色を楽しみながら、まるで自然の中にいるような、穏やかな時間が流れます。 吹き抜けがあることで、さらに広々とした印象になります。 -
ダイニング庭とリビングがつながっているような開放的な空間で、自然を感じながらゆったりと過ごせます。 かつ、リビングとは空間的にゾーン分けしております。 -
中庭自然光が降り注ぐ緑豊かな中庭は、家族の笑顔があふれる、安らぎの空間です。 訪れる人を温かく迎え入れ、特別なひとときを演出します。 -
バス・ランドリー洗濯機から取り出した洗濯物を、そのまま干せる便利なスペースです。 室内干しなので、花粉やほこりを気にせず、いつでも清潔な洗濯物が手に入ります。 -
吹き抜け吹き抜けがあることで、家族が離れていてもお互いの気配を感じられる、あたたかい空間となります。 -
寝室2階の寝室は、まるで隠れ家のような落ち着いた空間です。 寝室からクローゼット、洗面所へと続くスムーズな動線は、忙しい朝も慌てずに過ごせます。
「IS(イズ)」のこだわり
-
プラットフォームハウス タッチ外出先からでも、スマホで照明を点けたり、エアコンの温度を調節したり。まるで魔法のように、あなたの暮らしを快適にしてくれるのが「プラットフォームハウス タッチ」です。家族みんなが、もっと快適に、もっと楽しく暮らせるようになります。 -
スローリビング軒下の中間領域を介して、まるで自然の中にいるような心地よい空間を味わえます。 「スローリビング」は、科学的に心地よさが証明された、心も体もリラックスできる空間です。 -
アウターダイニング自然の光や風を感じながら、家族や友人と食事を楽しむことができます。 室内との一体感を重視した設計で、心地よい暮らしを実現します。 -
インテリアトレンドを取り入れながらも、あなただけの個性を表現できる、自由な空間づくりをお手伝いします。
積水ハウス株式会社 山形支店の注文住宅(モデルハウス)
似ている注文住宅のモデルハウス
-

Resort リゾート
Skogのいえ(キムラ)
非日常を満喫できるリゾートスタイルのいえ
-

シャーウッド平清水展示場
積水ハウス株式会社 山形支店
木の温もりと、心地よさが広がる人と、自然と、つながる家
-
ile-de-France
イル・ド・フランスSkogのいえ(キムラ)
大人かわいい北フランスのいえ
-
California
カリフォルニアSkogのいえ(キムラ)
西海岸の風を感じる平屋のいえ
-

FOREST-G<Hazard-resistant house>
ハート・コーポレーション
停電しても、お湯が出る。電気が使える。未来を守る災害に強い家
-

色を楽しむいえ
Skogのいえ(キムラ)
木のやさしさに触れ、ほっと安らぐいえ。


